$1,750,000
764
SQ FT
$2,291
SQ/FT
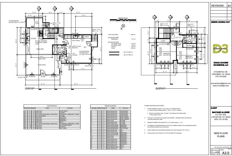
310 Tait Avenue
@ Bachman - 16 - Los Gatos/Monte Sereno, Los Gatos
- 1 Bed
- 1 Bath
- 2 Park
- 764 sqft
- Los Gatos
-
Premier Build-Ready Addition & ADU Opportunity in the Heart of Almond Grove! This charming 1 bed, 1 bath home (764 sq ft on a 2,544 sq ft lot) offers a rare chance to create a custom 1,439 sqft two-story residence with an ADU in highly coveted Almond Grove, just blocks from cafes, restaurants, boutiques, theatre, Bachman Park, and top-rated Los Gatos schools. Engineering, soils reports, and related technical work are complete, and plans have received Historic Architecture & Site Review Committee approval. Building plans are near final approval, allowing the next owner to move directly into the permit process and begin construction confidently avoiding typical delays in historic neighborhoods. Proposed plans envision a spacious, open-concept gourmet kitchen, vaulted ceilings in the living room, two generous upstairs bedrooms with a bath, and a versatile downstairs ADU perfect for a private primary suite, guest quarters, or supplemental studio space rental income. Set within a historic neighborhood renowned for its Victorian-era homes, this property offers the ideal blend of timeless charm, downtown convenience, and redevelopment potential. A truly rare opportunity to build in one of Los Gatos most iconic locations.
- Days on Market
- 24 days
- Current Status
- Active
- Original Price
- $1,750,000
- List Price
- $1,750,000
- On Market Date
- Jan 23, 2026
- Property Type
- Single Family Home
- Area
- 16 - Los Gatos/Monte Sereno
- Zip Code
- 95030
- MLS ID
- ML82029870
- APN
- 510-14-058
- Year Built
- 1918
- Stories in Building
- 1
- Possession
- Unavailable
- Data Source
- MLSL
- Origin MLS System
- MLSListings, Inc.
St. Mary Elementary School
Private PK-8 Elementary, Religious, Coed
Students: 297 Distance: 0.3mi
Fusion Academy Los Gatos
Private 6-12
Students: 55 Distance: 0.4mi
Los Gatos High School
Public 9-12 Secondary
Students: 2138 Distance: 0.6mi
Daves Avenue Elementary School
Public K-5 Elementary
Students: 491 Distance: 0.9mi
Raymond J. Fisher Middle School
Public 6-8 Middle
Students: 1269 Distance: 0.9mi
Louise Van Meter Elementary School
Public K-5 Elementary
Students: 536 Distance: 1.0mi
- Bed
- 1
- Bath
- 1
- Stall Shower
- Parking
- 2
- Off-Street Parking
- SQ FT
- 764
- SQ FT Source
- Unavailable
- Lot SQ FT
- 2,544.0
- Lot Acres
- 0.058402 Acres
- Kitchen
- Cooktop - Gas, Countertop - Granite, Dishwasher, Garbage Disposal, Hood Over Range, Oven Range - Gas, Refrigerator
- Cooling
- None
- Dining Room
- Breakfast Bar, Dining Area
- Disclosures
- Natural Hazard Disclosure
- Family Room
- No Family Room
- Flooring
- Tile, Wood
- Foundation
- Post and Pier, Concrete Perimeter
- Fire Place
- Living Room
- Heating
- Gas, Fireplace
- Views
- Neighborhood
- Architectural Style
- Cottage
- Fee
- Unavailable
MLS and other Information regarding properties for sale as shown in Theo have been obtained from various sources such as sellers, public records, agents and other third parties. This information may relate to the condition of the property, permitted or unpermitted uses, zoning, square footage, lot size/acreage or other matters affecting value or desirability. Unless otherwise indicated in writing, neither brokers, agents nor Theo have verified, or will verify, such information. If any such information is important to buyer in determining whether to buy, the price to pay or intended use of the property, buyer is urged to conduct their own investigation with qualified professionals, satisfy themselves with respect to that information, and to rely solely on the results of that investigation.
School data provided by GreatSchools. School service boundaries are intended to be used as reference only. To verify enrollment eligibility for a property, contact the school directly.



























